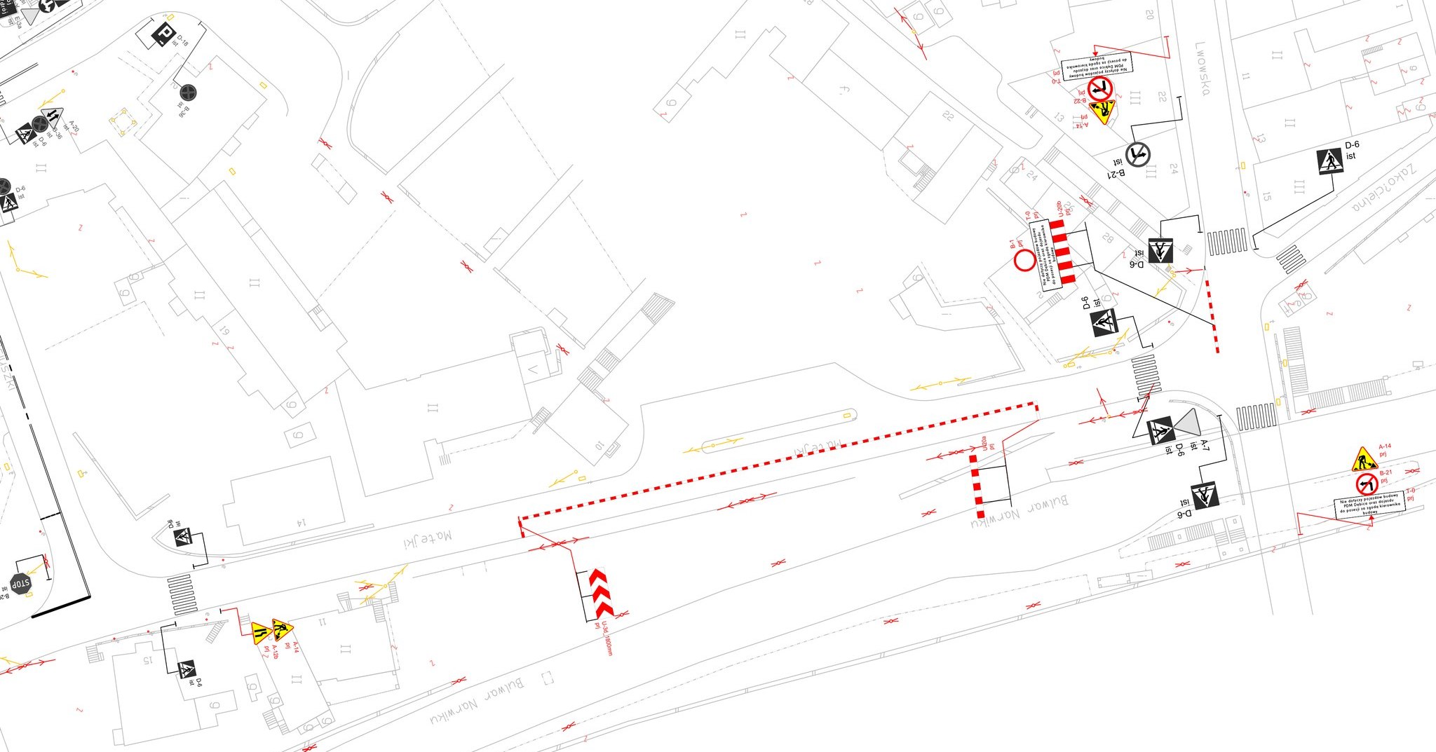
Znów będą utrudnienia na ul. Matejki w Nowym Sączu. W czwartek (16.04) około 8.00 rozpocznie się wymiana nawierzchni na odcinku między ul. Kościuszki i Lwowską, w ramach robót gwarancyjnych.
Prace będą wykonywane na jezdni w kierunku ul. Lwowskiej, a przez około 2 dni ul. Matejki będzie jednokierunkowa między Kościuszki i Lwowską.
Wjazd w ul. Matejki od strony ul. Lwowskiej będzie możliwy wyłącznie do posesji, za zgodą kierownika budowy – informuje Miejski Zarząd Dróg w Nowym Sączu.
Przypomnijmy, że ul. Matejki była remontowana w 2024 roku.















